- +1
抢先看!唐山这家卫星工厂规划图来了
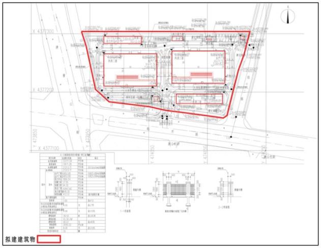
12月8日,唐山市路南区人民政府网站发布《九天微星卫星研发制造基地项目批后公布》,内容显示,该项目选址在唐曹公路以东、经十二路以西、稻齐路以北,总建筑面积为27213.71平方米。详情如下:
九天微星卫星研发制造基地项目批后公布
建设项目名称:九天微星卫星研发制造基地项目
建设位置:唐曹公路以东、经十二路以西、稻齐路以北
总建筑面积:27213.71平方米(地上建筑面积:27213.71平方米 地下建筑面积:0平方米)
建筑层数:9层
建筑高度:39.5米


相关资料九天微星卫星研发制造基地项目位于路南区稻齐路与唐曹公路交叉口东北侧,总占地面积约50亩,2020年启动建设,2021年初期工程建成后,将拥有年产100颗卫星的研制生产能力。目标是建设国内第一个智能化、脉动式的卫星工业生产线,服务国家卫星互联网“新基建”。
九天微星科技发展有限公司是中国首批民营卫星公司,是“新基建”卫星互联网领域领军企业,是承担国家互联网卫星总体研制仅有的两家民营公司之一。该项目将引入AGV机器人和MES生产信息化管理系统等智能化设备,可确保在短周期、低成本的情况下,灵活批量化生产50-500公斤级卫星。在此基础上,可以根据国家战略及市场需求,增加产线、扩大产能,有望发展成为全球领先的“批量化、自动化、智能化、柔性化”卫星制造与研发基地。
来源:中国唐山、唐山劳动日报
编 辑 | 张宇茜
校 对 | 王 磊
审 核 | 王颖玮
素材来源 :综合整理
投稿热线 :3728209
微 信 号:lunanfabu
原标题:《抢先看!唐山这家卫星工厂规划图来了》
本文为澎湃号作者或机构在澎湃新闻上传并发布,仅代表该作者或机构观点,不代表澎湃新闻的观点或立场,澎湃新闻仅提供信息发布平台。申请澎湃号请用电脑访问http://renzheng.thepaper.cn。





- 报料热线: 021-962866
- 报料邮箱: news@thepaper.cn
互联网新闻信息服务许可证:31120170006
增值电信业务经营许可证:沪B2-2017116
© 2014-2026 上海东方报业有限公司




