- +1
王贵祥:奉国寺大殿与辽、宋、金时期殿阁用材分析
木构建筑的用材等级与用尺长度是大木作研究中常议常新的基本问题。本刊主编、清华大学建筑学院王贵祥教授为《建筑史学刊》创刊号撰写《奉国寺大殿与辽、宋、金时期殿阁用材分析》一文,在重新审视并剖析辽、宋、金时期木构殿阁内在设计规律的基础上,创造性地提出了将木构殿阁材广的实测尺寸按《营造法式》所规定的标准材等尺寸折合,求取其所用“寸”之长度,进而反推建筑用材等级及用尺长度的研究方法。并以义县奉国寺大殿为例,推算大殿的可能用尺及其重要构件的设计尺寸与材分关系。这一研究,是千年奉国寺的一份生日贺礼,也为辽、宋、金时期木构建筑用材等级和用尺长度的分析与探讨提供了新的思考方向。
奉国寺大殿与辽、宋、金时期殿阁用材分析
文|王贵祥
奉国寺大殿简述
辽宁义县奉国寺大殿与山西大同上华严寺大殿,是仅存的两座创建于 10—13 世纪之中国中古时期即唐、辽、宋、金时代的九开间大型木构殿堂。除此之外,元代以前的木构殿堂中,开间数达到九间的尚存另外两座实例,分别是南宋遗构苏州玄妙观三清殿与元代遗构河北曲阳北岳庙德宁殿。
但从严格意义上讲,玄妙观三清殿与北岳庙德宁殿,都属于“殿身七间,周匝副阶”的重檐大殿,与《营造法式》意义上的“殿身九间”木构殿堂,在开间数上似还差着一个等级。也就是说,14 世纪以前的建筑遗构中,殿身为九开间的高等级大型木构殿堂,非奉国寺大殿与上华严寺大殿莫属(图1,图 2)。

图1 辽宁义县奉国寺大雄殿外观(黄文镐 摄)

图2 大同上华严寺大雄殿外观(辛惠园 摄)
进一步比较:上华严寺大殿虽初创于辽,但在辽金战争中遭到焚毁,是金代重新建造之物;奉国寺大殿却仍然为辽代所创之原构。奉国寺大殿采用了较为复杂的七铺作双杪双下昂斗栱做法;而华严寺大殿仅用了五铺作出双杪斗栱做法。两相较之,奉国寺大殿似乎更集中了辽代高等级木构建筑的典型特征,由此或也可以略窥义县奉国寺大殿在中国古代建筑史上不可替代的历史价值,抑或也能凸显出这座创建于千年之前木构殿堂的弥足珍贵。
据既有研究可知,寺初名咸熙寺,金明昌三年(1192)更名为“大奉国寺”,大殿创建于辽开泰九年(1020)。寺内尚存元至正十五年(1355)《大奉国寺庄田记》碑,记载:“义州大奉国寺:七佛殿九间,后法堂九间。正观音阁、东三乘阁、西弥陀阁,四贤圣洞一百二十间。伽蓝堂一座,前三门五间,东斋堂七间,东僧房十间,正方丈三间,正厨房五间,南厨房四间,小厨房两间……”可知奉国寺曾有着相当完整的建筑规制与寺院规模(图 3)。

图 3 据史料中记载的义州大奉国寺平面示意(作者自绘)
现存寺内遗构,沿中轴线布置有山门、内山门、牌坊、天王殿、大雄殿,左右分置财神殿、菩萨殿、西方三圣殿,另有其他辅助建筑。其外观与整体空间组群,仍堪称关外巨刹。从历史价值与艺术价值角度观察,唯有这座面广九间、进深五间的主殿——奉国寺大殿,或称七佛殿,仍然保持了其辽代初创时原构的基本形态。在历经了千年风雨,并见证辽、金、元至明、清历史沧桑剧变之后,这座千年遗构仍能傲然屹立于塞北苍茫大地上,成为人们了解历史、追思先哲、体味中国建筑千年传承的典型实证,不能不说是一个奇迹。
初识奉国寺大殿
笔者对奉国寺大殿的初步关注始于 40 年前。当时在恩师莫宗江先生指导下,笔者与同学钟晓青正一同从事五代末吴越国所建福州华林寺大殿研究。最初研究目标,是要从文献中厘清华林寺大殿始建年代,并在大殿详测数据基础上,通过对造型比例、构造特点、斗栱做法、材分制度等方面的探讨,为这座大殿是否仍属五代时的初创原构找到更为充分的实证依据。
为达成这样一个目标,就需要将自 9 世纪至 13 世纪即唐、辽、宋、金时期尚存木构殿阁实例作较为全面的了解与分析。唯有充分厘清并理解自晚唐至辽宋时期尚存木构建筑诸多特征,才可能对华林寺大殿遗构的真实历史价值作出较为准确的判断。因为这一原因,建于辽开泰九年(1020)的辽宁义县奉国寺大殿,成为一个必然要接触到的重要实例。
研究过程中,笔者注意到华林寺大殿与奉国寺大殿之间存在某些相近特征。如:虽然华林寺大殿面广仅为三开间,在开间等级上与奉国寺大殿有明显差别,但二者都采用七铺作双杪双下昂斗栱做法。
进一步,笔者注意到华林寺大殿的一个重要特征:其梁架中平槫上皮标高,恰好是其内柱柱顶标高的 √2倍;同时,大殿当心间间广,恰好也是其前檐平柱柱高的√2倍(图 4)。显然,其中蕴含了古人所追求的诸如“天圆地方”“外圆内方”等具有中国文化意味的“方圆相涵”关系。

图4 福州华林寺大殿剖面比例(作者自绘)
深入研究中,笔者注意到这一“方圆相涵”比例在诸多唐、辽、北宋建筑中都有存在,如:五台南禅寺大殿(782 年)、蓟县独乐寺山门(984 年)、宁波保国寺大殿(1013 年),以及梁先生与莫先生先后测绘过的两座辽代遗构——宝坻广济寺三大士殿与涞源阁院寺大殿。当然,也包括本文讨论的义县奉国寺大殿(1020 年),这些中古时期遗构的共同特点是:其前檐橑风槫(橑檐方)上皮距台基顶面标高,与其前檐平柱柱顶标高之间,存在有类如方圆相涵的 √2∶1 的比例关系(图 5)。

图 5 实例中柱高与檐高比例(作者自绘)
正是基于这一分析,笔者注意到奉国寺大殿在平面与外观设计上的严整与细密。例如,作为一座九开间大殿,其当心间平柱高度与其当心间开间之广大致上是1∶1关系;橑风槫上皮标高与前檐平柱柱高为 √2∶1 关系。而在同是中古时期的三开间殿遗构中,华林寺大殿与独乐寺山门的当心间间广,却恰好是其平柱柱高的√2倍。而独乐寺山门橑风槫上皮标高,也正好是其平柱柱高的√2倍。
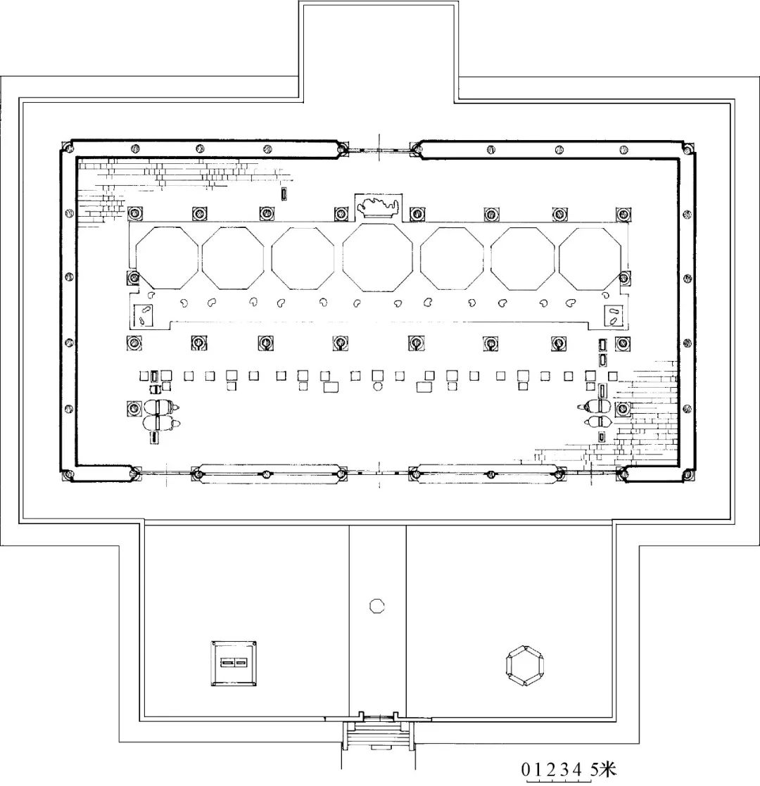
奉国寺大殿平面通进深相当于其平面通面广的 0.5 倍左右(图 6),类似的情况,也发生在大同上华严寺大殿平面通进深与通面广之比上。有趣的是,七开间的大同善化寺大殿,通进深相当于通面广的 0.6 倍左右;五开间的大同下华严寺薄伽教藏殿与海会殿,通进深相当于通面广的0.7 倍左右;三开间殿堂,则从通进深相当于通面广之0.8 倍左右的南禅寺大殿、通进深相当于通面广之 0.9 倍左右的平遥镇国寺大殿,到通进深与通面广之比约为 1∶1的榆次雨花宫、平顺天台庵大殿等比例不等(图 7)。

图 6 奉国寺大殿平面图
(郭黛姮 . 中国古代建筑史 第 3 卷 宋、辽、金、西夏建筑 [M]. 北京:中国建筑工业出版社,2003.)

图 7 实例平面与立面比例(作者自绘)
由此透露出来的信息似乎可以引人猜测,唐、辽、北宋时期木构殿堂建筑,在不同开间之间或也可能存在某种内在契合性比例关系。重要的是,在所有这些有规律的比例关系中,奉国寺大殿都是居于最高等级之殿身九开间殿堂位置上,并与居于中间等级的七开间殿堂(如五台山唐佛光寺东大殿),五开间殿堂(如河北高碑店辽开善寺大殿),及居于最低等级的三开间殿堂,如天津蓟县辽独乐寺山门间,存在某种比例上的相互契合与有规则的变化性呼应(图 8,图 9)。

图 8 实例檐下立面比例(作者自绘)

图 9 实例当心间与理想当心间立面比例(作者自绘)
在当时的研究中,笔者在这一粗略分析基础上作出推测:很可能自中晚唐,经五代,至辽、宋时期,中国木构殿堂建筑在基本的平面、外观与斗栱、梁架等设计上,在一个较长的历史时段及在诸多工匠匠作群之间,可能存在具有某种相互默契性的共同规则,从而有可能在木构殿堂之材分的确定、等级的分划、比例的控制诸方面,使得跨越数世纪之久、距离数千里之外的木构殿堂在设计上仍可发现某种内在规律与相互契合。
再探奉国寺大殿材分用尺
然而,限于中国中古时期木构遗存原本十分稀少,且分布相当零散,能够从中搜寻到的数据更是极其有限,尽管对奉国寺大殿及那一历史时段木构建筑遗存尚存诸多谜团,但当年的研究也只能做到如此深度。
40 年后的今天,情况已发生了很大变化。建筑史学、遗产保护学都获得长足发展。有关义县奉国寺的研究也已硕果累累。如曹汛先生论文《独乐寺认宗寻亲——兼论辽代伽蓝布置之典型格局》,尤其是辽宁省文物保护中心与义县文物保管所完成的《义县奉国寺》之系统研究与勘察,是这一时期有关义县奉国寺研究的最重要成果。
《义县奉国寺》一书,提供了大殿较为详细的测绘数据。此外,郭黛姮先生《中国古代建筑史 · 第三卷》也搜集了一些辽、宋、金木构遗存基本数据,基于这些数据,或可对奉国寺大殿再作一点稍加深入的分析与研究。
实例范围与数据
这里不妨先将唐、辽、北宋时期一些重要建筑遗构的基本材广数据加以整理列表,作为进一步研究的基础(表 1)。

从这些时代比较接近,斗栱所用材广尺寸似也比较接近的一批辽、宋、金时期木构建筑入手,似能发现一些它们彼此之间可能存在的联系。
基于宋《营造法式》“以材为祖”的规则或可推知,时代较为接近的不同开间与等级之建筑物间,最根本的联系与差异,正是由其“材分制度”所决定的。比如,开间较多的殿堂等级一般较高,则会采用较高的用材等级,如一等材、二等材、三等材等;开间较少的建筑或等级稍低的亭榭、余屋之类,其用材等级亦可能较低,如六等材、七等材、八等材等;而数量较多的建筑,如若开间数适中,建造位置适当,可能会采用中等等级的材分,如四等材、五等材等。至于室内藻井、壁藏、佛道藏等小木作,其所用材等并未列在八等材之内,其材广厚及相应份值,应属于小木作用材的另外一个体系。
问题是,在《营造法式》问世之前,这种等级化材分制度是否存在?如果存在,那么这种等级区划在建筑中是如何确定的?还有一个问题,每一时期的材分等级分划,无疑与这一时期工匠群中流行使用的营造用尺相互关联,表 1 所列辽、宋、金时期木构遗存,显然不会用统一的营造尺。如何找出每座建筑的可能用尺自然也是一个难题。
两个基本假设
为了尝试性展开本文的分析与讨论,这里先作两个假设:
其一,至迟自中晚唐时期,中国木构建筑体系中的“材分制度”已经初步形成,并在各地匠作体系中各自运行,《营造法式》中的材分制度等级分划,只是对唐宋时期已经存在的材分制度的一个总结。
其二,很可能在材分制度形成之初,就初步明确了某种按照材广尺寸确定的八个等级的材广规则,并且一直延续到《营造法式》的正式刊行。换言之,《营造法式》中“材分八等”之规则,及各自材广规定,在《营造法式》出现之前或已存在。
基于这样两个假设,本文尝试按照八等材尺寸规则,对表 1 中所列 10 至 12 世纪,即辽、宋、金时期木构建筑实例之材分的可能用尺,作一点探究;并对这些建筑的可能用尺、用材等级及彼此之间的关联性,作一点探索。如此可能要承担一点数据不足的风险,但从学术研究角度来看,若上一步冒险探求可能会为下一步充实数据、校正认知提供某种契机,或也未尝不算是一种研究的深入?
唐尺与宋尺
关于用尺,由于中国古代度量衡系统的复杂与变化,很难对某一时代的用尺有十分明确的区隔与确定。尤其是辽代,因为辽末战争的原因,相关的文献与实物遗存极其罕见,至今鲜有学者能够说得清辽人的用尺情况。一种说法是辽承唐制,辽人采用的可能是唐尺;也有一种说法认为辽初期有可能采用了唐制,其后随着与北宋交往的增多,也渐渐采用了宋尺。但是,这两种说法都无法找到切实的证据。
即使是讨论唐尺或宋尺,仍然是一个难解的话题。有一说,日本正仓院所藏 26 把唐尺,其长度范围,从每尺长29.4 厘米至 31.7 厘米不等,其中变化的幅度仍是相当大的。中国文献中,一般认为唐尺沿用了隋开皇官尺,其长度在29.5 厘米至 29.6 厘米左右,据说故宫尚藏有一把隋末唐初时的铜尺,其尺之长为 29.67 厘米。如此,若辽、宋初年建筑,其用尺范围在 29.3 厘米至 29.7 厘米之间,或其上下浮动值较小者,或可以推认其所用之尺可能是唐尺。
至于宋尺,其长度的浮动幅度无疑更大。一般多会提到北宋的“三司布帛尺”,但仅三司布帛尺,就有 31.3 厘米与 31.6 厘米两个长度说法。亦有学者从宋人沈括《梦溪笔谈》中所言“古尺二寸五分十分分之三,今尺一寸八分百分分之四十五强”,以其含新莽尺 1.845 寸与宋尺 2.53寸之比,由所知新莽尺长 23.1 厘米,推算出宋尺长度为31.68 厘米。但从各地出土之宋尺长度来看,也有短于31.3厘米或长于 31.6 厘米的。因此或可以将宋尺的长度范围圈定在 31.2 厘米至 31.7 厘米之间。换言之,只要在这个范围内或上下浮动值较小的,似可推认其所用之尺可能是宋尺。
近年研究中,诸多学者对于房屋用尺及可能透露出的房屋匠作系统的时代性与地域性信息有许多重要发现。本文亦尝试运用这一既有方法,只是将这一探索局限在一个较小的范围,即房屋所用栱之高度(材广)尺寸的确定上。这虽然是一个较为单一的数据,却也是至为关键的一个数据。从严格意义上讲,每一建筑之用材大致应该符合其所用尺之“寸”的整数值,并从“以材为祖”之概念出发,由这一材分值推测房屋各主要部分之可能尺寸规则。基于这一想法,若将每座建筑之材广尺寸作为横坐标,以其可能采用的材分等级作为纵坐标,再将之与其所建造时代的可能尺长范围加以一一对应,或能够找出与这座建筑最为接近的用尺长度。
10 世纪末前后时期部分遗构之用材分析
表2 中包括了五代末所建平遥镇国寺大殿(963 年)与北宋初年所建榆次雨花宫大殿(1008 年),以及几座建于10 世纪晚期的辽代殿阁,如涞源阁院寺大殿(966 年)、蓟县独乐寺观音阁与山门(984 年)的材广、用尺之“寸”长,及可能材等推测。

从时代上看,这一时段大约覆盖了五代末至辽宋初年,即 10 世纪末前后的 40 至 50 年间(图 10);从地域上看,这些遗构是在五代末的北汉及辽一带。在 10 世纪末前后的这一地区,很可能更多地承袭了晚唐时期的一些匠作系统。

图 10 唐及辽、宋初年七铺作斗栱实例(作者自绘)
对表 2 中这几座殿阁所用材广,分别以三种可能材等加以分析,大致可以得出一组相当接近的数据,即这几座创建于北汉末、辽宋初年的北方木构殿阁,很可能仍然在采用这一地区晚唐时期一直在沿用的“唐尺”,即其用尺长度在 29.4 厘米左右。
11 世纪以后辽代主要遗构实例用材
表 3 所列是一批典型辽代木构建筑实例,其始创时间大约已经进入 11 世纪 20 年代以后,从时代上看,距离五代结束与北宋建立已有 60 年,甚至更长。由此或可以推测,这时的辽人或已浸润在北宋文化的影响下,有可能采取了与宋地相一致的度量衡制度。即使是深受晚唐及五代文化影响的幽燕之地,在匠作体系上恐也应该经过了一至两代工匠。辽地的营造用尺,很可能与北宋地区开始取得了某种一致或默契。

对表 3 中辽代殿阁所用材广,亦分别以三种可能材等加以分析,同样可以得出一组大致接近的数据,并由此作出一个推测:这些在接近辽代中叶时所创建的北方木构殿阁,很可能采用了直接或间接受到北宋度量衡制度影响的用尺,其尺长度约在 31.3 厘米至 31.7 厘米之间。
尚存北宋主要遗构实例用材
表 4 所列是目前所知较为重要的一些北宋时期木构殿阁实例遗存。其分布范围,既有与辽人十分接近的河北、山西等地,也有江南甚至岭南地区。因为其中一些建筑历有改建,其准确的建造年代也不十分确定,但大致都已经接近北宋中叶时期,在北宋地区所建造之殿阁显然采用的应该是北宋用尺。

由于其实例之地域分布过于广阔,且其建造年代也并不十分清晰,这些建筑之匠作系统之间很难有什么直接或间接的联系,其用尺及营造规则无疑也会存在巨大差别。
对表 4 中北宋时期殿阁所用材广,亦分别以三种可能材等加以分析,仍可以得出一组还算比较接近的数据。从表 4 中可见,这些建筑物所采用之尺,其长度约在 30.2 厘米至 31.8 厘米之间。
其中,建造于河北与山西地区的几座殿阁,其用尺与表 4 中所列辽代建筑的用尺几无差别,长约在31.3 厘米至31.8 厘米之间。地处河南的少林寺初祖庵,用尺约为 30.8厘米,似已显小;而另外两座远在浙江及广东地区的宋代殿阁,用尺则明显更小,尺长似仅为 30.2 厘米至 30.5 厘米左右。
当然,仅凭这样几个稀少的案例,很难在其中找出北宋时期南方与北方在营造用尺上的差异。但从这些例证中可知,北宋时期木构建筑所用尺其长度已经多在 30 厘米以上,与采用唐尺(29.4 厘米)的晚唐与五代时期有了截然的区分。
尚存金代主要遗构实例用材
表 5 所列为北方地区的几座较为重要的金代建筑,其分布范围也比较接近,集中在山西中部与北部地区。从表 5中数据可知,其所用尺仍应符合宋代度量衡制度,其尺范围约在 31.3 厘米至 32 厘米之间。

如果表 4、表 5 所显示的数据无误,则似乎可以推测,11 世纪 20 年代之后的北方地区,即辽、北宋及金代的山西、河北一带,在营造用尺上的差异很可能不是很大,大约都在 31.3 厘米至 31.8 厘米之间。这也大略接近北宋营造尺的长度范围。
需要说明的一点是,表 1 至表 5 中,既未将五代末吴越国所建福州华林寺大殿,也未将辽金时代所建大同上华严寺大殿纳入到统计与分析的范围之内。主要是因为这两座殿堂斗栱的用材断面尺寸明显较大,无论用唐尺还是用宋尺,都很难纳入到《营造法式》概念下的八等材范畴之内。其中的真实原委至今仍然是未解之谜。
奉国寺大殿相关尺寸之分°值及主要设计尺寸推算
从上文中的推测可知,奉国寺大殿用材高 28~29 厘米左右,以其材广 28.5 厘米计,按一等材推测,其用尺疑为31.7 厘米。若再增加两种可能:如以其材广 28 厘米计,仍为一等材,其用尺可能为 31.1 厘米;如以其材广 29 厘米计,仍为一等材,其用尺可能为 32.2 厘米。然而,大殿实际用材断面高度并非如此准确,似在 28 厘米至 29 厘米之间有所浮动。之前学者的研究如陈明达、郭黛姮等的著作,多称其材广 29 厘米,而《义县奉国寺》作者则称其材广 28 厘米。故这里取中数 28.5 厘米计之,当也是一个约略接近的数值。
以其材高 28.5 厘米计,一等材高 9 寸,其用尺长度为31.7 厘米。这里再将其材高分为 15 份,则一份为 1.9 厘米,疑即是一个接近奉国寺大殿所用材分制度之分°值的数字。我们可以利用这个数字,对奉国寺大殿中的某些相关尺寸加以分析,再将之与宋《营造法式》中的相关数字相比较,或能够得出对奉国寺大殿的进一步认识(表 6)。

按照本文的分析,以上文所推算出的奉国寺大殿可能用尺为 31.7 厘米,相应分°值为 1.9 厘米推算,表 6 中所显示的奉国寺各主要建筑尺寸及构件尺寸,其分°值数相对是比较规整的。而其所用丈尺数在一个很微小的幅度内稍加调整,就可以得出合乎逻辑的大殿可能“设计尺寸”。如其通面广 15.2 丈(2536.5 分°),通进深 7.93 丈(1322.5分°),当心间面广 1.86 丈(310.5 分°),次间面广 1.83丈(305 分°),前檐平柱高 1.88 丈左右(313 分°),当心间前内柱高 2.97 丈(496 分°),乳栿长 1.51 丈(252分°)(图 11,图 12)。这些很可能都在一定程度上反映了这座辽代建筑在初创时期可能采用的设计尺寸。

图 11 折合古尺绘制的辽宁义县
奉国寺大殿平面图(作者自绘)

图 12 折合古尺绘制的奉国寺大殿
结构横剖面图 A(作者自绘)
其梁栿断面高两材一栔八分,比《营造法式》中规定的若用四铺作至八铺作檐栿,“并广两材两栔”之断面略小几分,但与《营造法式》规定的厅堂梁栿“广不过两材一栔相较,也略多几分;其柱径约两材一栔,与《营造法式》所规定之“若殿阁,即径两材两栔至三材”要小一些,但与《营造法式》规定的“若厅堂柱,即径两材一栔”恰相吻合。其阑额高一材一栔,与《营造法式》规定的阑额“广加材一倍”明显偏小。由此似也可以看出,在辽宋初年,殿阁与厅堂建筑在用料上的差异似乎还不那么明显。抑或奉国寺大殿一开始采用的就是“厅堂”式建筑的用材做法,亦未可知。
结 语
创建千年的辽宁义县奉国寺大殿,以其九开间的高等级殿堂规格,辽、宋时期之一等材材分规格,且具有七铺作双杪双下昂的高规格做法和极为规整的平面、立面与剖面设计,从而毫无疑问地被视作中古时期高等级木构殿阁最重要的经典实例。
我们不仅从其平面进深与面广之约为 0.5∶1 的比例、橑风槫上皮标高与前檐平柱高之间存在的 √2∶1的“方圆相涵”之比例、当心间间广与前檐平柱柱高接近 1∶1 的比例关系,以及平面及当心间立面之比例,注意到了奉国寺大殿与中国中古时期,即唐、辽、宋、金时期建筑中不同开间建筑间可能存在的某种内在规律性,而且也通过将其斗栱所用材广尺寸纳入到这一时期诸多木构实例之材广的可能用尺与可能用材等级的排列比较与分析上,初步找出了与其建造时段相契合的、被用作辽、宋时期殿阁建筑之一等材的证据,并回溯出其当时的可能用尺。从而将这座大殿的用材等级与用尺长度,纳入辽、宋、金时期木构建筑之用材与用尺的大视野中加以观察。
从用尺上看,创建于 10 世纪末前后的几座北方殿阁,很可能仍采用既有的唐尺,其用尺长度为29.4 厘米左右。而以奉国寺大殿为代表的 11 世纪 20 年代以后辽及金代的木构遗存,都已经采用了宋尺,其用尺长度为 31.3 厘米至 31.7 厘米左右。其中还可以看出,南方木构殿阁用尺似比同一时期北方木构殿阁用尺略短一些,而其用材等级,与《营造法式》中按照房屋开间数确定的用材规则,虽有一定契合,却也似乎并不十分严格。本文以尺长 31.7 厘米计,将实测尺寸折合为古代丈尺,数据相当规整。以此尺推测出的奉国寺大殿设计所用分°值为 1.9厘米(28.5 厘米 /15),在大殿平、剖面尺寸中也表现得十分规整。
将通过这一分析而推测出的义县奉国寺大殿之用尺长度与材分数值,与大殿实测数据加以核算,可以回溯出一套相当规整的诸如面广、进深、开间、柱高、乳栿长等殿阁的主要设计尺寸,及相应的材分°值,也包括其与《营造法式》规则相契合的主梁断面广厚材栔关系等,这些或可以为本文的分析方法及结论提供某种支持,并使我们对辽、宋、金时期木构殿阁之可能的用材与用尺有一个初步认识。
作者简介
王贵祥,清华大学建筑学院教授。
本文受国家社会科学基金重大项目“《营造法式》研究与注疏”(17ZDA185)和清华大学自主课题“《营造法式》与宋辽金建筑案例研究”(2017THZWYX05)资助。
本文为澎湃号作者或机构在澎湃新闻上传并发布,仅代表该作者或机构观点,不代表澎湃新闻的观点或立场,澎湃新闻仅提供信息发布平台。申请澎湃号请用电脑访问http://renzheng.thepaper.cn。





- 报料热线: 021-962866
- 报料邮箱: news@thepaper.cn
互联网新闻信息服务许可证:31120170006
增值电信业务经营许可证:沪B2-2017116
© 2014-2026 上海东方报业有限公司




