- +1
案例:北上广老城里的“新建筑”
来源:公众号“文旅商业化运营”
东西越旧,越有味道
因为它承载了
一小段历史
旧主人的一份情思
还有岁月赋予它的一丝魅力
北上广这三座寸土寸金的城市,在历史记忆和文化情怀都保存完好的同时,老城区却空心化严重。老城区里的大部分老房子,早已到了使用年限,残破不堪,有着极大的改造和重建需求。
这些无人问津的老宅、毫无生气的旧居,因为建筑师的妙手回春而渐渐苏醒,慢慢复活。旧楼房和围墙之间的“新建筑”是年轻人对美好生活的期盼,也是老一代人无法割舍的记忆。
下面让我们一起由屋及情欣赏这些老城区里的“新建筑”
01.一对85后年轻人的最美婚房 | 广州城中村改造
02.从“坐困愁城”到“大隐于市” | 历史街区住宅改造
03.44㎡ 窝·居的极致改造 | 窝.居
04.狭缝中的住宅 | 北京灯市口胡同住宅改造
05.回归胡同生活 | 小樊的“插件家”
06.一个白色房子,一个生长的家 | 里弄里的私宅改造
07.里弄烟火人气中的烂漫璀璨 | 水塔之家
●广州
01.
一对85后年轻人的最美婚房
广州城中村改造
设计:汤物臣·肯文创意集团
坐标:广州
两位共同怀着恋旧情节的85后夫妻在旁人无法理解的坚持下,买下一栋位于广州荔湾旧城的三层老宅作为他们的婚房。老宅经历了时代、环境、居住者一代一代传承的变化,曾经有趣的人、物、故事让这栋古建筑的风骨渗入到灵魂。同时,岁月的洗礼也赋予它破旧、沧桑的一面。
▲旧建筑周边航拍图该项目被立为危险楼房,并存在着结构不规则、经常浸水、昏暗无光、与邻居共墻共窗等现实问题。设计师团队不仅在解决以上房子的物理结构问题外,还对业主初创家庭和未来家庭成员的变化进行预设和计划。
▲新建筑周边航拍图在各层小平台及室内植入绿植,形成仿如一个内外部混合的立体花园,让邻里和街坊都能感受丝丝自然绿意,帮助调节城市微气候。

▲门外绿植广州雨水较多,原有的结构导致房屋每到雨季便浸水进屋,设计师团队以最重心的问题作为开端,将整栋建筑地台提高至800mm。为了保留居住者对整个空间视线的开阔性,首层地面局部下沉,分别形成会客厅和下沉式茶座。
▲会客厅和下沉式茶座团队第二步做的是使整栋建筑分成两侧,南边室内体块退缩,使中间形成天井,倾泻而下的日光在建筑的中心位置上创造出一种竖向的动态感,将自然光线引入到每一个空间,同时改善室内的通风情况。
▲中间天井以中间的天井为核心,再将两边的建筑设计成错层结构,无论是光和空气都能更自由地融入到各个空间中,开放墙体,使各层空间更通透,视觉得以更好延伸。楼梯由一楼串联各层,形成空间体块,室内动线更加活跃,一方面让空间与空间之间的互动更明显, 另一方面令人与人,人与“家”更亲密。
▲空间演变示意图
▲楼梯由一楼串联各层错层的设计让空间与空间形成缝隙,透过缝隙,家人之间在不同楼层中都能构建一种视觉或听觉的联系,形成一种新的陪伴方式,让这个家创造更多趣性的体验。
▲错层的设计设计师团队由始至终都希望通过设计,让这个被称作“家”的房子能有更多可能相遇、相聚的空间,思考如何通过空间改变家人的相处模式,甚至是家庭关系。平衡人与建筑以及周围环境之间的关系至关重要。设计,要让居住者对家有持续的幸福感和居住渴望的氛围。
▲楼顶花园
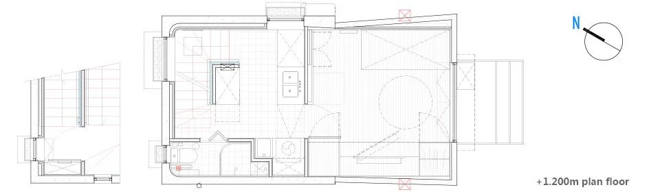
▲平面图建筑师:汤物臣·肯文创意集团
主创建筑师:谢英凯,田芳
项目设计师:罗作滔,刘天中,余江序,潘晴
摄影师:黄早慧,范文耀,毛迪生
02.
大隐于市-历史街区住宅改造
从“坐困愁城”到“大隐于市”
设计:URBANUS都市实践
坐标:广州
广州海珠区的蒙圣社区,因传说秦朝名将蒙恬后裔在此定居而得名。项目所在的上蒙圣街是一条幽深的小巷,原建筑是1985年屋主自建的三层半砖混结构小楼,单层建筑面积仅有22平方米,四周为密集的房屋所包围。
▲周边环境建筑外墙选用了褐红色天然纹理的小片石材,颜色与周边的老旧建筑相近,随着时间的流逝它细碎的纹理会与环境愈加融合。改造后的建筑低调地融入社区,坐享大都会中‘大隐于市’的一方精神天地。
▲建筑外墙改造设计由内及外,在极小的空间内重新组织生活功能,用雕镂的方法使建筑内部上下贯通,房中有房,小中见大;顶层引入天光,明暗开合有度。南北两侧外墙上特殊的采光斗将天光引入底层。
▲立面草图
▲一楼起居室、餐厅
▲二层活动室
▲二层儿童房一个房子,不仅需要容纳人的身体,还应该容纳人的精神和梦想。整栋房子虽小,但足以承载大都会喧嚣之上的一份超然物外的恬静。正如《桃花源记》中的“初极狭,才通人”,走过只有一线天光的窄巷,又“复行数十步,豁然开朗”,从下而上经历了一个从幽暗到明亮、从压抑到释放的过程,构建出一个垂直的桃花源式的居住体验。
▲二层通向三层的楼梯
▲主卧四层顶楼有一个空灵剔透的小房间和一个可以四面环顾市景的露台,它没有固定的功能,适于赏月、饮茶和沉思。
▲四层房间
这个仅80余平方米的极小独栋住宅是构成广州旧城肌理的一个微小单元,作为一个城市微更新的样本,它对于历史传统深厚的旧城区,有着特殊的人文意义,也是对大拆大建的旧城更新模式的批判和抵抗。
▲住宅夜景设计:URBANUS都市实践
地点:广州市同福东路蒙圣社区上蒙圣街十八号
主持建筑师:孟岩
项目建筑师:姜轻舟
摄影师:张超 孟岩 姜轻舟 张超贤
03.
窝.居
44㎡ 窝·居的极致改造
设计:汤物臣·肯文创意集团
坐标:广州
设计师在佔地仅为20㎡的微型空间中,为一对都市年轻情侣和两隻猫星人建造私属“乌托邦”,在满足物理层面的实用性、美观性的同时又满足了精神层面的舒适性,构筑关于“家”的新价值观——窝·居并不代表是蜗居。
▲原建筑及周边环境
▲改造完项目外观
▲鸟瞰在极少化的空间框架下,关于尺度的思考,不要仅仅只是缩小一切,设计师基于这个客观前提下,处理著这个“单纯又复杂”的空间关系,同时在感性层面满足年轻人对一个家的氛围的需求。
▲剖面效果图业主两人养了一只猫,设计师考虑猫和人有著不同的人机工学尺度,而人和猫同时作为「窝·居」的主人,需要通过家具和空间的设计去干预尺度,让两种尺度産生有趣的交集,将「窝·居」同时成为居住者和猫咪的游乐场。
For People-人
▲动线图-人楼梯悬空设计,削弱原本楼梯的笨重感,让整个起居室更加轻盈通透。
▲楼梯居住者坐在客厅透过缝隙连通了到厨房的视线,“去走廊化”的处理让空间适应性得到延伸。

For Pet-猫星人
▲动线图-猫
The Cattery-猫窝利用不同段差取代隔间做出空间区隔,多层次空间让铲屎官与猫主人能有更多若即若离的互动区域,两位铲屎官也可以随时监测到猫主人的动态。
▲空间功能图
▲猫咪活动空间
▲榻榻米
▲楼顶露台
▲平面图项目名称:窝·居-2020 东方卫视 梦想改造家
项目面积:44㎡
设计单位:汤物臣·肯文创意集团
摄影师:黄早慧 / 毛迪生 / 钟鹏
●北京
04.
北京灯市口胡同住宅改造
狭缝中的住宅
设计:B.L.U.E. Architecture Studio
坐标:北京
项目位于北京东城区灯市口附近的胡同里。L形的狭房子夹在胡同老墙和一个二层高楼的外墙之间,居住着三代共6口的一家人。改造通过增加大面积的天窗以及通透的玻璃立面解决原先的采光问题。
▲住宅入口一层根据人在不同功能空间里的活动高度,自然形成了几个高高低低的木头盒子,包括客厅、餐厅、卧室、书房和浴室等功能。在保证每个家庭成员有着相对独立生活空间的同时,创造一个整体的连续的开放空间,增加了人与人之间交流的机会。
▲入口学习区
▲一层区域
▲餐桌
▲充分利用的空间通高的公共走廊部分和胡同相连,像是胡同街道的延伸。通向后院的大門采用木质框架和透明玻璃,可以整体打开,任何时候都可以将庭院的景引入室内,人的活动可以同时在庭院进行,室内外互通,与自然融合。家不是一个封闭的房子,而是属于城市空间的一部分。
▲洗手间
▲通透的学习区二层的儿童空间是另一个连续层叠的“立体胡同”, 为孩子们在室内创造一个可以像户外一样开放自由的游乐场,其中使用布条和网等柔软材料以保证儿童的安全。
▲二层儿童区设计单位:B.L.U.E.建筑 设计事务所
总建筑面积: 43平米
摄影师: 锐景摄影
05.
小樊的“插件家”
回归胡同生活,在老城中享受新生活。
设计:众建筑
坐标:北京
小樊在西城区的长椿街胡同院里长大。上高中时,家里因无法忍受胡同过时的生活条件,和大杂院日益拥挤破败的环境,在郊区购买了一套楼房。但她自己住不惯楼房,仍然留恋着饱含人情味的胡同生活。
▲建筑外观设计师采用“插件家”系统来改造家里的这间老平房,让她重回儿时成长的环境。相比较于买楼房,改造费用节省了30倍,居住条件远超楼房,日常能耗也大大降低,上下班通勤时间也从之前的4小时缩短为1小时。
▲建筑周边这间“插件家”是为患有幽闭恐惧症的小樊量身定做的:客厅比原来的平房高近一倍,顶部双侧都开了高窗,阳光能够铺洒在室内的每个角落。卫生间屋顶隐藏的蓝色顶面,让这个小空间在雾霾天里也能反射出湛蓝的天光。屋顶平台让小樊在拥挤的胡同环境中拥有一片能够呼吸的小天地。
▲客厅比原来平方高一倍
▲阳光洒满每一个角落
▲高窗新建房屋不能影响任何方向邻居的采光、视线与通风,所以出现了不同方向的退台和斜切面。甚至在搭建过程中,邻居新的修改意见也会随时出现,但插件板可以很轻松的现场切割,这一特性使得调整都能轻易实现。

▲顶层平台
▲分析图“插件家”是交织的社会力量在诸多实际限制中催生出来的新城市景象。“插件家”用居民花得起的钱实际提升了居住质量,让像小樊这样的年轻一代原住民能够回归胡同生活,在老城中享受新生活。
▲总平图
▲剖面图主持设计: 何哲 沈海恩 臧峰
设计团队: 陈亦怀 张朕
屋面防护技术支持:北京建中新材科技有限公司
摄影: 众建筑、高天霞
●上海
06.
老房新生-里弄里的私宅改造
一个白色房子,一个生长的家
设计:RIGI睿集设计
坐标:上海
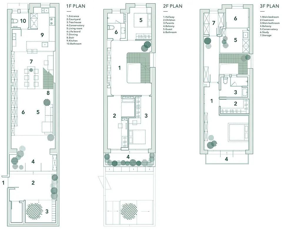
房子位于上海市中心的一个旧里弄里,有整整71年的历史。这里有这座城市最原汁原味的市井气,也承载着几代人对于老上海的记忆。在这普通旧里弄之中,RIGI睿集设计了这个三层白色的住宅。

▲项目外观
▲老宅区位原始建筑1947年竣工,由三层组成。面宽5.5米,深度约15.2米。南北朝向,南北各有入口,由于内部复杂隔间很多,深度也很深,整体室内的采光较很差。由于建筑修建时间较早,建筑局部构造有修复结构需求的可能,因此为建筑整体做了加固设计,并统一了整个建筑的层高,将原来位于北侧的楼梯全部拆除。
▲住宅入口
RIGI在一楼的设计中延展了半开放的区域,模糊了室内外的界限,原来孤立的院落和三层空间,在改造后有了新的对话关系,半户外阳光空间,为客厅空间增加了足够温暖的气息。阳光,植物,室内,室外,模糊的场景界限让空间和生活场景中随意切换,设计师在院子中预留了一个树洞,春天的时候种上的树木,随着这个家,孩子一起成长,时间也是设计的一部分。
阳光房客厅餐厅与厨房在一楼的设计中形成一个完整空间,这是一家人在一起分享最多的空间,不管是父母孩子还是老人,希望这个空间是属于生活之中的每一个场景,而不是被功能所定义的。
▲阳光客厅
▲模块化家具墙面小朋友的床和书桌以及仓储连接在一起,主人的小孩很喜欢这个房子,在楼梯爬上爬下,在院子里不停的玩耍,这也是设计师的一个初衷,给这个孩子一个更大的世界,站在另一个维度去理解这个不停变化的世界。
▲儿童书桌由钢板楼梯围绕自然光天井自一楼起循序向上,可以看到改造过的天窗和垂直采光窗以及一个纯户外空间,这是改动最大的区域。整个建筑的源发点就是从阳光和垂直空间开始。主卧保留了原始建筑的坡顶结构,将衣帽间和卫生间统一在一个盒子之中。
▲主卧
▲洗手间
房子并不代表家,家永远是属于自己的家人的地方。家承载了我们每一天的生活,这应该是一个容器,承载着的成长,经历和希望。而设计,应该是给生活更多的宽容。

▲剖透视
▲平面图
▲改造前后对比图作品名称:一个白色房子,一个生长的家
主设计师:刘恺
设计师:杨骏一
摄影师:田方方
案例面积:240㎡
07.
水塔之家
里弄烟火人气中的烂漫璀璨
设计:Wutopia lab 俞挺
坐标:上海
上海建筑师俞挺率领他的团队精彩漂亮的完成了一座水塔住宅的改造,给上海里弄那烟火人气的生活带去一星烂漫的璀璨。水塔从鳞次栉比挤挤挨挨的壮观弄堂屋瓦中高耸而出,怀揣梦想,端着态度,向这个东方巴黎之城彰显自己的平凡与不凡。
▲建筑外观项目是金陵东路的一处旧式里弄里孤独矗立着一座水塔住宅。最早的塔楼是一个约4m见方的筒子楼存水用。水塔底部架空,是小区主要的通道。
▲项目周边水塔上的家,住着爷奶二人与孙女,住户最大的心愿是儿子儿媳也同住在此。上海老城厢上空的家,39平承纳着一家人衣、住、吃、行的所有内容。

▲建筑剖面设计师在原有的两层空间中增加了一个夹层,看似挤压了原有空间,但是因为这个错层每个不同功能的房间实际上变的疏离。从一个房间到另一个房间都要经过一段不短的“跋涉”。
▲玄关 厨房 起居室
▲玄关
▲厨房
▲起居室
▲老人房平面图
▲老人卧室
▲儿童房平面图
▲儿童房户主曾经想在坡屋增加一个屋顶花园,出于安全和未来不确定因素的考虑。最终他看到的是一个在阳台上的垂直花园。外立面适当的改建体也是设计师一种态度的体现,即便是改变一个微小的个体,也要作出对负面城市空间的一种积极回应。
▲屋顶花园鸟瞰
▲立面图近期文章
原标题:《案例:北上广老城里的“新建筑”》
本文为澎湃号作者或机构在澎湃新闻上传并发布,仅代表该作者或机构观点,不代表澎湃新闻的观点或立场,澎湃新闻仅提供信息发布平台。申请澎湃号请用电脑访问http://renzheng.thepaper.cn。





- 报料热线: 021-962866
- 报料邮箱: news@thepaper.cn
互联网新闻信息服务许可证:31120170006
增值电信业务经营许可证:沪B2-2017116
© 2014-2026 上海东方报业有限公司




