- +1
外企city girl,在全球工作买房的故事
原创 新加坡眼
外派菁英
欧美标准的高薪,亚洲标准的低税收,还有公司的高额外派补帖,新加坡一直是各国外派(expat)菁英阶层的”热土“。从当年的大英殖民政府派来的莱佛士也可以算是“外派第一人”,到现在的银行外企高管,他们在亚洲欧洲美洲澳洲之间搬个家,好像是办公室内部换个工位。
他们来自不同的国家,职业和兴趣各不相同,但是却有一些共同点高收入、良好的教育背景和全球化经历,成为特别的社群或圈子,在衣食住行等生活方式带着一些鲜明的特点和喜好。
现在任职于一家总部位于美国的高科技企业新加坡分公司的何小姐,就是这样一位expat人士。
刚刚在新加坡买下一套两居室的她,接受新加坡眼的采访,分享她的买房故事。
何小姐在旅游中,伦敦街角咖啡店我们采访的地点约在何小姐常去的一家咖啡馆,common Man Coffee Roasters,灰色理性的入口阶梯通向暖色灯光室内空间,营造出友好舒适的氛围。

绿植和温暖的木质家具的咖啡馆“可能是受了爸妈东方观念的影响,我从小就听他们的话,有钱就用来买房。”何小姐出生在马来西亚华人家庭。
她自己在吉隆坡有190平米的大房子,在澳洲留学工作,拿到绿卡后,也以本地居民的税率买房。派驻新加坡,几年后又拿到新加坡PR。
她看好新加坡未来的经济发展,在这个城市拥有自己的产业意味着分享这个国家成长的红利,”新币很强劲,不是吗?“她反问道。
“外国人在新加坡买房要交30%的ABSD(印花税),对我来说有些贵,但是拿到PR,我只用交5%。”
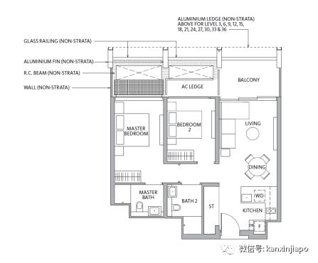
何小姐购置的两居室平面图,空间在76-78平方米,价格为234.8万新币起在哪儿买房就是选择哪儿的生活方式
她在CBD上班,她公司位于亚洲广场(Asia Square)。她考虑过买宏茂桥附近的房子。宏茂桥是深受本地人追捧的好市镇,但是何小姐不喜欢那里过于吵闹的生活方式。
公司附近她又觉得“住太近了,与办公环境没有什么区隔。”
她还是喜欢现在住的地方。从来新加坡就一直住的区域——罗伯逊码头(Robertson Quay)这附近。现在她租住的公寓也是几年前名声在外的楼盘,作为住户,她体验到不少质量上的不足,并不想买现在所住的小区。
事实上,她在新加坡买房,可以说是一个任性的开始。
在罗伯逊码头和朋友散步,她指着新加坡河畔的Rivergate公寓,笑说“我喜欢这个”。
且不说Rivergate的价格是否超出单身贵族何小姐的承受范围,主要是这个区域近十年来没有推出新盘,就是想买也没有新房。何小姐的朋友与她也觉得就是开个玩笑,却发现旁边瑞雅嘉苑的样板间,于是走进去看。
离市区近,离大世界(Great World)地铁站只有270米距离,非常方便。公寓临河而建,环境优美安静。精装修可以拎包入住。从租房中搬出来,住进自己的房子,还能维持之前的生活方式,想起来就是一件让人开心的事情,何小姐说:“我是一个city girl,喜欢精致的生活,这里有熟悉的健身房,有自己最喜欢的踩单车运动,也可以步行去附近的咖啡馆。这周围有很多自己喜欢的餐馆,跟朋友聚会后可以步行回家,不用花费打车或地铁通勤的时间。”

何小姐钟爱的希腊餐厅BAKALAKI尽力买自己最喜欢的房子
何小姐喜欢的地段,在市中心边际,拥有便利的交通,成熟优雅的生活娱乐配套。这样的地段,最大的缺点就是“贵”。
她买的这套两房,2百多万新币,价格不算便宜。问及为什么要买这么“大”的房子,何小姐笑道“哪里大?我在吉隆坡的房子是190平方米。”
她喜欢买尽可能大的房子。如果钱够,她会毫不犹豫选3房。
何小姐在意大利五渔村国家公园瑞雅嘉苑这套两卧的房子,其中首付40余万新币,也包括她售出澳洲的房子套现所得。
除了需要钱付新加坡房产的首付,何小姐也认为现在澳洲房产不是进场的好时机,利率涨得太高了,另外,澳洲的房产,对于外国人有些限制,外国人只能买新房,出售时只能卖给澳大利亚人。新加坡的房产对外国人没有这些限制,也意味着有更大的流通性。
追求自由独立的人生
何小姐有很多兴趣爱好,她喜欢旅游和各地美食,游历过很多国家。她追求自由务实的人生,她听从家人买房的建议,但是对于父母催婚的提醒,她却不以为然。
她目前和男友生活在新加坡。有爱人,有工作,有房产的生活,让她十分安心。
“现在我不需要去交每月5000的租金,我更愿意把钱用来交我的贷款,因为最终这个房子是属于我的。”谈到这里,何小姐发出银铃般的笑声。

在荷兰阿姆斯特丹品尝当地小吃;在日本京都游玩何小姐的故事,也是新加坡以十万计的外派人士中的一个。他们受过良好的教育,面向全球的就业机会和居住机会,可以承担得起自己喜爱的事物,供自己享用,自由人生的惬意,不过如此。
原标题:《外企city girl,吉隆坡-悉尼-新加坡的全球工作买房故事》
本文为澎湃号作者或机构在澎湃新闻上传并发布,仅代表该作者或机构观点,不代表澎湃新闻的观点或立场,澎湃新闻仅提供信息发布平台。申请澎湃号请用电脑访问http://renzheng.thepaper.cn。





- 报料热线: 021-962866
- 报料邮箱: news@thepaper.cn
互联网新闻信息服务许可证:31120170006
增值电信业务经营许可证:沪B2-2017116
© 2014-2026 上海东方报业有限公司




