- +1
违规进入密闭空间典型案例⑪ | 盲目施救导致“二次伤亡”教训深刻
前言
近年来,船员、维修施工人员、码头作业人员等违规进入船舶危险密闭空间引发的窒息、中毒、坠落等事故频发,严重威胁作业人员生命安全。特别是在密闭空间事故中,由于盲目施救导致的“二次伤亡”问题尤为突出。
2025年1月15日以来,交通运输部海事局在全国范围内开展为期9个月的违规进入船舶危险密闭空间行为专项治理行动,推动落实安全责任,提高船舶安全管理水平,防范类似事故发生。
本案例聚焦2023年5月2日发生在漳州港区的“明X”轮密闭空间作业事故,事故造成1名码头装卸工人误入缺氧舱室窒息死亡,船员盲目施救导致二次伤亡。事故教训深刻,警示业界密闭空间安全管理不可松懈,在应对密闭空间事故时务必强化风险评估和科学施救。
一、事故概况
2023年5月2日,中国香港籍杂货船“明X”轮(总长196.5米,总吨38,988)在漳州某港卸载原木时,1名装卸工人违规进入货舱梯道密闭空间后昏迷,随后船舶大副在缺乏有效救援措施的情况下盲目入内施救,也因窒息昏迷,二人最终经抢救无效死亡,构成一般等级水上交通事故。
二、问题及原因分析
1. 船岸安全沟通机制不完善
“明X”轮在靠泊卸货前,未与码头作业方签署《船岸安全检查表》,未进行有效的安全交底,导致码头作业人员未充分了解船舶熏舱风险,装卸工人缺乏进入密闭空间的安全意识。
2. 船舶未有效管理密闭空间
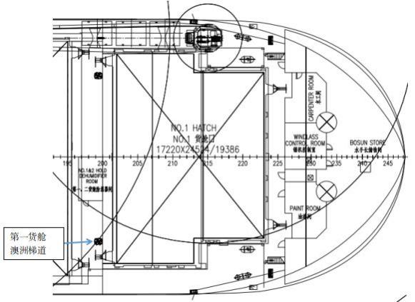
“明X”轮的NO.1舱“澳洲梯道”属于密闭空间,该轮按照管理体系要求应锁闭舱梯入口并设立醒目标识,但事发时该区域舱口已打开,且未见明显封闭空间警示标识,导致码头工人误入。

图 1:NO.1 舱澳洲梯入口及警示标识。图 2 :NO.1 舱澳洲梯内的旋转梯。福建海事局供图3.作业人员违规进入密闭空间
事故发生前,装卸工林某某受指挥手安排,原本应在NO.1舱的原木垛上协助解开挖掘机吊索,但由于NO.1舱内原木堆积导致他无法直接到达作业点,他选择从澳洲梯道下舱绕行,却误入了严重缺氧且含有一氧化碳和磷化氢的封闭空间,最终窒息昏迷。

图 3 :NO.1 舱甲板俯视图。图 4:NO.1 舱澳洲梯梯道结构和事故人员位置。福建海事局供图
图 5 :事故当天的 NO.1 舱照片。图 6 :卸完货后的 NO.1 舱照片。福建海事局供图4. 船员盲目施救,导致二次伤亡
大副得知装卸工人失联后,在未进行风险评估、未检测舱内气体含量、未穿戴正压式呼吸器的情况下,仅佩戴过滤式防毒面罩便直接进入密闭空间施救,短时间内因缺氧及一氧化碳中毒死亡,导致二次伤亡。
5. 现场应急救援混乱
事发后,船员在组织救援时缺乏科学施救方法,未按照船舶应急部署的救助程序进行有效搜救。尽管船长随后安排水手长佩戴正压式呼吸器入内救援,但整体救援行动未能迅速、高效地实施,未能及时阻止事故的发生。
三、安全管理建议
1. 从公司层面:强化制度落实与安全监督
航运公司应全面落实安全管理体系(SMS),加强全员安全意识和技能培训,确保全体船员熟悉并严格执行密闭空间安全管理要求。
航运公司要加强管理和监督,通过定期上船检查和专项安全审计,检查船员对密闭空间管理制度的执行情况、进入许可的审批记录、气体检测和防护装备的维护状况,确保各项安全管理要求落到实处。
2. 从船舶层面:强化密闭空间管理、日常演习及靠港安全联络
船舶应严格落实密闭空间管理制度,定期识别和动态更新封闭空间清单,并在所有封闭空间入口设立醒目的警示标识,采用物理封闭措施(如锁闭舱梯门)防止人员误入,避免误入事故的发生。
船舶应定期开展密闭空间进入和紧急施救的演习,内容应包括个人防护装备的正确使用、紧急撤离程序、应急救援组织与指挥等,防止因认知不足或盲目施救导致事故发生。
在船舶靠泊期间,船方应与码头作业方签署《船岸安全检查表》,明确各自的安全职责和船舶密闭空间的管理要求。通过有效的安全交底,确保外来人员和码头作业人员充分了解船舶密闭空间的风险,防止因沟通不畅导致的事故发生。
3.从船员层面:强化安全意识和应急处置能力
船员要具备自我保护意识和科学施救能力,严格遵守安全救援规程,避免贸然独自进入危险区域。遭遇紧急情况时,应立即报告船长,并按照应变部署表的分工和指令,有序开展救援,确保统一行动、救援安全。
通过从公司、船舶和船员三个层面全面强化安全管理,严格落实密闭空间的安全管理要求,可以有效防范违规进入密闭空间事故的发生,降低二次伤亡的风险,保障登船作业人员和船员的生命安全。
原标题:《违规进入密闭空间典型案例⑪ | 盲目施救导致“二次伤亡”教训深刻》
本文为澎湃号作者或机构在澎湃新闻上传并发布,仅代表该作者或机构观点,不代表澎湃新闻的观点或立场,澎湃新闻仅提供信息发布平台。申请澎湃号请用电脑访问http://renzheng.thepaper.cn。





- 报料热线: 021-962866
- 报料邮箱: news@thepaper.cn
互联网新闻信息服务许可证:31120170006
增值电信业务经营许可证:沪B2-2017116
© 2014-2026 上海东方报业有限公司




