- +1
东大排面!网友热议的大阪世博会中国馆,为啥这么好看?
4月13日,
2025年日本大阪世界博览会盛大启幕。
在这场全球瞩目的盛会中,
中国馆宛如一颗璀璨明珠,
以其独特风姿吸引着世界的目光。
从外形上看,中国馆宛若中国传统的书简长卷,
让观众一眼就能感受到强烈的
中国元素和浓郁的文化气息。
不仅设计独到有品位,
中国馆的建设,
可以说是中国建筑领域
新质生产力应用的一次集中体现,
充分展示了我国多项
走在世界前列的建筑理念和技术。
今天,就和小新一起
探访大阪世博会中国馆,
感受文化与科技交融之美!
PART.01
竹韵书简,绘就东方华章
中国馆占地约3500平方米,
是世博会占地面积最大的外国自建馆之一。
作为“我国城乡建设科技领域的国家队”,
中国建科担纲了
2025年大阪世博会中国馆
建筑概念方案设计。
中国工程院院士、
中国建科首席科学家、
中国建筑设计研究院
总建筑师崔愷以“中华书简”为灵感,
巧妙融合竹子、汉字、书卷等
寓意丰富的文化符号,
将竹简这个古老的信息传递工具,
与当今信息时代的发展结合起来,
诉说中华千年历史,
展现中国生态文明建设,
诠释了天人合一的中华优秀传统、
人与自然和谐共生、
绿色低碳的当代中国设计理念,
也诠释了
“共同构建人与自然生命共同体——
绿色发展的未来社会”的参展主题。
为何会以“书简”为灵感?
崔愷在此前的访谈中给出答案——
崔愷:“我之前在敦煌设计了一个遗址博物馆,我了解到在那时就有大量书简从长安城传播到西域边关,书简作为信息传递的重要媒介给我留下了深刻印象。片片竹简串接成卷,便于携带和保存,阅读时渐次展开,简顺绳软,自成曲面。中国馆此次的设计方法就是利用书简的打开模式,给人们呈现出一种徐徐展开的感觉,它承载着中华民族几千年的智慧与记忆。书简上有很多古老的篆字,相信有不少日本老人非常喜欢中国的书法,他们喜欢阅读和研究这些汉字,汉字是一种代表中国的特定的表达符号,是文化沟通交流重要的方式。”
崔愷院士手稿中国馆处于大阪世博会园区的核心位置,
南侧面向主要道路,
西侧靠近中央景观区——静谧森林,
用地呈狭长状。
崔愷院士利用渐次打开的竹简,
将观众带入一个空间廻转、
层层递进、步移景异的园林式展线,
引人入胜,
体现了含蓄的东方美学。
各个主题展览依次展开,空间高低、明暗变化丰富,
展现出一幅壮丽的山水画卷。
竹简曲墙之外有细长的格栅帷幕,
如同竹帘,
帘内有竹林小径,
帘外有林木婆娑,
东方园林的意境呈现出独特的韵味,
让参观者也享受到丰富的空间体验。
步入馆区,首先映入眼帘的
是馆前以篆书石鼓文撰写的
醒目“中国”标识,
古朴庄重,
尽显中华文字的独特魅力。
双曲面屋顶造型精巧,
如灵动的书卷轻轻卷起,
外立面竹简肌理温润华美,
“中华书简” 上,
以金、篆、隶、行、楷5种字体
镌刻着119句汉字诗词名篇,
涵盖《诗经》《楚辞》、
四书五经等经典著作。
从《诗经》中“关关雎鸠,在河之洲” 的纯真质朴,
到《楚辞》里
“路漫漫其修远兮,吾将上下而求索”的浪漫与坚毅,
这些诗词跨越时空,
如同一座文化宝库,
让每一位观者
都能感受到中华文化的博大精深。
中国馆在设计与建造过程中
充分体现绿色可持续的核心理念。
竹材作为最适合表达
“竹简”意象的材料,
本身也具有生长周期短、碳吸收量大、
易降解、材性柔韧、传热系数低等优点,
成为建馆的主材。
屋面上轻透的阳光板如宣纸一般,
引入了自然光。
竹墙间的景窗缝隙,
可以导入微风。
装配式、预制化的建造方式,
提高了建造效率和质量,
便于会后再利用和回收。
大阪世博会中国馆开馆后,
中外嘉宾高度评价
中国馆建筑外观和精彩展项内容,
赞赏中国馆展现的
五千年中华文明深厚底蕴
和新时代高质量发展辉煌成就,
期盼各方通过大阪世博会
加强互学互鉴,实现互利共赢。
PART.02
创新技术与精细管理,打造国际工程典范
作为中国馆建设的
全过程工程咨询服务单位,
中国建研院承担了全过程
项目管理、工程勘察、
方案深化设计、工程设计、
展陈设计、招标代理与采购咨询
及全过程造价咨询、工程监理、
建筑信息模型(BIM)设计等工作。
中国建研院将建筑与展陈、室内与室外融合设计,
统一以中华书简为语汇,
打造内外统一的空间形态,
充分运用有限而变化的建筑空间
部署展览叙事单元,
将建筑形态转化为展陈的叙事语言,
让建筑会讲中国故事。
回顾中国馆的建设过程,
中国建研院充分发挥
“国家队”管理及技术优势,
实现了含金量满满的
“首个”“首次”“原创”。
“首个”
按照日本建造规范和审批流程完成设计、
施工及管理的工程项目
中国建研院在大阪世博会中国馆
建设全咨服务过程中,
积极探索中国设计咨询
“走出去”新模式,
成功克服中日技术标准差异,
通过严谨的设计论证
保障中国馆竹简造型
内外统一地完整呈现。
在紧张的设计周期中,
项目团队成员及时
学习跟进、融会贯通,
因地制宜、依法合规
推进设计工作,
按计划完成设计成果编制,
并创造性地积累了在日本
开展设计业务的有益经验。
中国建研院参加大阪世博会中国馆项目论证会讨论手稿面对全新的日本建设报批流程,
项目团队快速学习掌握,
在设计报审的各个环节,
设计团队提早与相关部门接触沟通,
实现所有许可批复“准点达”,
确保了项目如期推进,按期竣工。

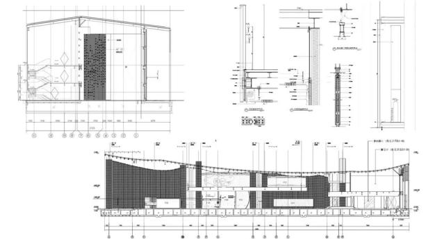
大阪世博会中国馆项目设计图纸(左右滑动查看更多)“首次”
实现中国建造技术在日本体系化输出
亮点一:装配式可逆化
建造设计为工期提速
为提高构件材料现场组装精度及效率,
并考虑后期拆除便利性,
中国馆项目的钢结构、竹简外墙、
屋面阳光板等重要构件材料
全部采用在国内采购预制生产、
分批运输至大阪施工现场
安装的装配式建造模式。
其中,主体钢结构生产后在国内
完成了整体预组装和预搭建工作,
拆除后运往日本进行现场安装;
为验证施工工艺,
充分保证效果,
在中国建研院内进行了
竹简板样板组装和现场认样工作。
大阪世博会中国馆主体结构屋顶钢梁精准吊装到位
亮点二:低碳材料与技术
为绿色节能提效
中国馆项目所使用的钢结构材料、
竹质材料、阳光板幕墙等
均为可循环利用材料,
其中,竹简墙材质选用了
国内新型低碳固碳的竹质产品,
该材料具有其生长周期短、
固碳能力强的优势。
大阪世博会中国馆立面竹简外墙技术层面,
中国建研院通过制定园区集中冷冻水
节能低碳用能方案、优化气流组织、
采用节能及智能照明和节能电梯
对能源系统进行主动的高效优化;
通过优化围护结构选材、
自然通风采光等方式
进行被动式的本体节能。
大阪世博会中国馆室内亮点三:“堵疏结合”的屋面防水
为安全提质
中国馆屋面为多曲面,
并有透光要求。
设计采用“堵”与“疏”相结合方式,
“堵”为阳光板与阳光板之间
采用铝板、丁基胶带进行封堵,
形成完整的防水体系,
“疏”为在交接位置
无论是长边还是短边,
在下方增设了排水沟,
排水沟相互贯通,
通过檩条高差将水“倒出”室外。
大阪世博会中国馆立面及排水沟设计完成后,方案在中国建研院
建筑安全与环境国家重点实验室
进行了足尺样板测试,
历经三次加压淋水实验,
检测抗渗漏性能,
验证了系统构造做法的可行性。
完工后的屋面防水
既不影响曲面屋面的整体造型效果,
又保障了防水的安全性能。
大阪世博会中国馆项目屋面阳光板试验
“原创”
自主研发数字化智慧建造管理平台
针对项目大部分主体建筑材料
由国内采购和加工制作后
海运至大阪现场
再进行装配式组装的特点,
中国馆创新数字化智慧管理模式,
依托中国建研院国内首款
完全自主知识产权的
——BIM基础平台BIMBase,
专项研发了智慧建造管理平台。
智慧建造管理平台
创新采用跨境远程可视化管控模式,
实现建筑材料从生产加工、
运输、装配式组装直至
最后拆除的项目建设全过程
实时监督和动态管理,
有力保障了中日团队“零时差”协作,
为“智慧建造”理念提供了
成功实践范例。
自主研发的数字化智慧建造管理平台
PART.03
“八网”融合,绘就“现代版桃花源”
作为中国馆内唯一参展的中央企业,
中国能建携“八网”融合
未来城市解决方案,
倾力打造了“智慧城市”展项,
讲述中国式现代化的最新成果,
呈现人类命运共同体的东方答案,
与世界各国共绘可持续发展的美好未来。
中国馆围绕过去、现在、未来,以“天人合一”“绿水青山”“生生不息”
三大篇章为叙事主线,
展示5000年中华文明孕育的传统生态智慧,
展现新时代绿色发展的理念与成就。
中国能建在中国馆“生生不息”展区
打造的智慧城市展项
以“八网”融合未来城市发展方案为内核,
紧扣“未来社会”主题,
突出沉浸式、互动性、体验感,
运用沙盘模型、三维视频、
互动多媒体等展示手段,
打造了一场融汇数字浪潮、
绿色革命与人文传承的
“现代版桃花源”主题灯光秀,
向全球呈现了中国
在清洁能源、人工智能、智慧交通、
生态环保、低空经济等领域
前沿技术的突破与应用。
大阪世博会中国馆,
是一场视觉与心灵的盛宴,
是传统与现代的对话,
是中国与世界的拥抱。
本届世博会的主题是
“构想焕发生机的未来社会”,
期待在未来,
我们共同见证
更多改变世界的中国实践!
原标题:《东大排面!网友热议的大阪世博会中国馆,为啥这么好看?》
本文为澎湃号作者或机构在澎湃新闻上传并发布,仅代表该作者或机构观点,不代表澎湃新闻的观点或立场,澎湃新闻仅提供信息发布平台。申请澎湃号请用电脑访问http://renzheng.thepaper.cn。





- 报料热线: 021-962866
- 报料邮箱: news@thepaper.cn
互联网新闻信息服务许可证:31120170006
增值电信业务经营许可证:沪B2-2017116
© 2014-2026 上海东方报业有限公司




